Maison

Maison à vendre à Arlon
340.000 €
Avenue de Longwy, 337
6700 ARLON
Description
W Immobilière vous propose à Arlon, à deux pas du centre-ville, une charmante maison de ville avec garage et jardin.
Ce bien se compose comme suit :
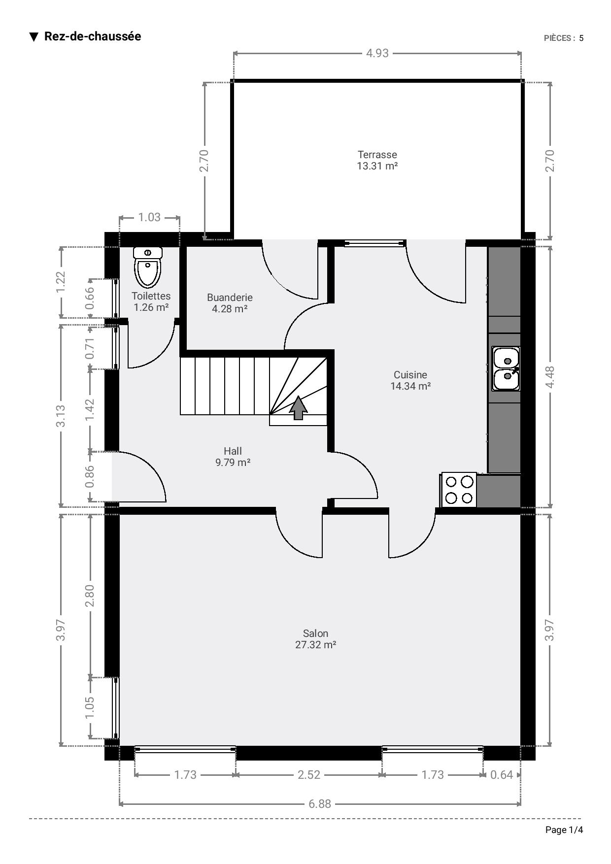
Niveau RDC : hall d'entrée, séjour salon-salle à manger, cuisine équipée donnant accès à la terrasse, WC séparé, buanderie.
Niveau +1 : hall de nuit, trois chambres, une salle de douche.
Niveau +2 : vaste grenier aménageable.
Niveau -1 : caves, garage, chaufferie.
Cette maison, en très bon état d'entretien, offre des volumes confortables et ne nécessite que quelques rafraîchissements.
Vous profiterez d’une belle terrasse orientée plein OUEST, donnant accès à un jardin de plus de 900 m².
Une maison de ville offrant un excellent confort de vie, à seulement 5 minutes du centre d’Arlon et à proximité de toutes les commodités (écoles, supermarché, boulangerie, N4).
Les informations fournies par l'agence ont un caractère indicatif et non contractuel. En conséquence, elles ne peuvent engager la responsabilité de l'agence et ne dispensent pas la personne intéressée de réaliser les vérifications.
Documents liés au bien
Informations générales
- Surface habitable 145 m2
- Surface du terrain 930 m2
- Nombre de chambres 3
- Nombre de salle de bains 1
- Cave Oui
- Grenier Oui
- Chauffage C.C. au mazout
- Châssis bois
- Date de disponibilité A l'acte
- Revenu cadastral net 0
- Rapport de l'installation électrique Non-conforme RGIE
Performances énergétiques
- Numéro de certificat PEB 20251014019681
- Émissions de CO2 spécifiques 125 kg/m2.an
- consommation totale d’énergie primaire Etotale = 73492 kWh/an
- Consommation spécifique d'énergie primaire Espec = 507 kWh/m2.an
