Maison

REF: 9317

Très belle maison à vendre à Aubange

550.000 €

Rue Léon Delchavée, 4
6790 AUBANGE

Description

W Immobilière vous propose à Aubange, dans un quartier calme et sans passage, une maison deux façades avec garage et jardin.

🏠 Composition :

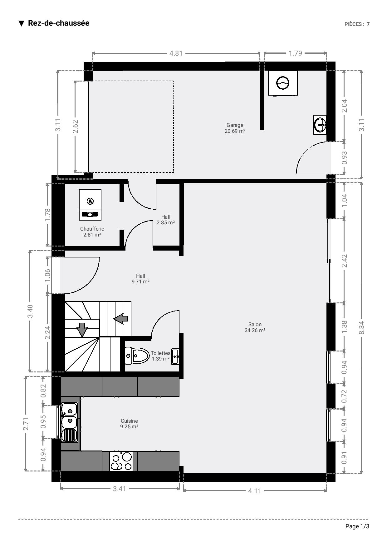
Rez-de-chaussée : hall d’entrée, WC séparé, vaste séjour lumineux ouvert sur la cuisine équipée, chaufferie, vestiaire, garage et buanderie.
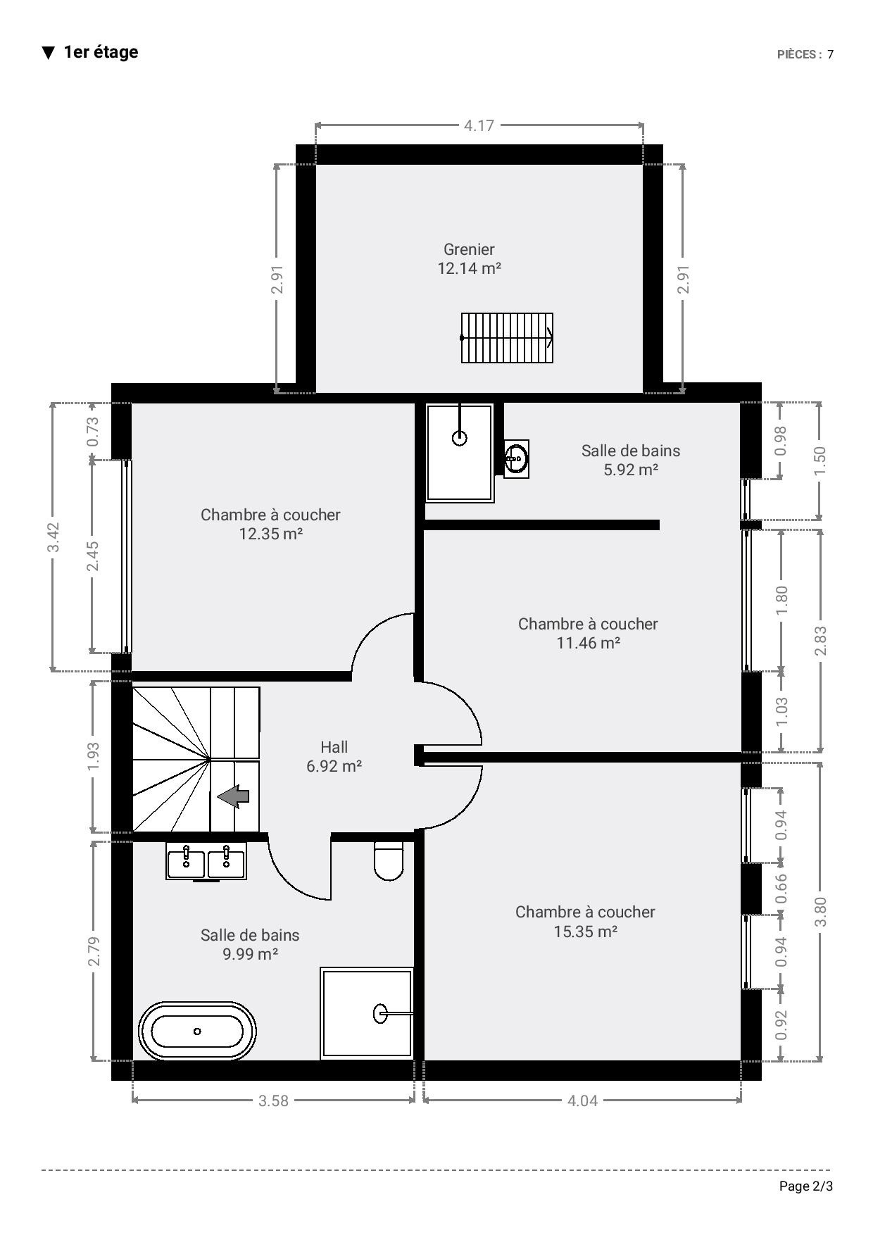
1er étage : trois chambres à coucher, hall de nuit, deux salles de bains modernes et grenier de rangement.
2e étage : grenier supplémentaire accessible par une trappe escamotable.

💎 Ce qu’on aime :

  • Finitions de qualité et cuisine haut de gamme
  • Deux salles de bains contemporaines
  • Excellente performance énergétique (PEB A) grâce à la pompe à chaleur, l’isolation renforcée, la VMC et les châssis de haute qualité
  • Deux espaces grenier pratiques
  • Garage attenant et jardin orienté Est-Ouest, ensoleillé le matin et en fin de journée
  • Dalle en béton déjà prévue pour une future terrasse

📍 Localisation :

À proximité immédiate de la frontière luxembourgeoise et de toutes les commodités (écoles, commerces, transports).

Bien vendu sous le régime des droits d’enregistrement.

📞 Pour tous renseignements : W Immobilière – 063 227 277

 

Informations générales

  • Surface habitable 175 m2
  • Surface du terrain 372 m2
  • Nombre de chambres 3
  • Nombre de salle de bains 2
  • Cave Non
  • Grenier Oui
  • Chauffage Pompe à chaleur
  • Châssis pvc
  • Date de disponibilité A l'acte
  • Revenu cadastral net 990
  • Rapport de l'installation électrique Oui, conforme RGIE

Performances énergétiques

  • Numéro de certificat PEB 20220607500377
  • Émissions de CO2 spécifiques 16.59 kg/m2.an
  • consommation totale d’énergie primaire Etotale = 11460 kWh/an
  • Consommation spécifique d'énergie primaire Espec = 66 kWh/m2.an
EPC level

Simulez votre crédit

Taux
%
Budget
Durée (ans)
Votre mensualité
Être informé des nouveaux biens

Demande de contact à propos de ce bien

Être informé des nouveaux biens

Vous avez des critères spécifiques et vous ne trouvez pas ce qui vous correspond ? Inscrivez-vous à notre recherche active.

Critères de recherche

Vos coordonnées

Demande de contact à propos de ce bien

Demande de contact à propos de ce bien