Maison

REF: 9716

Charmante fermette à rénover à Tontelange

430.000 €

Au Village, 92
6717 ATTERT

Description

W Immobilière vous présente à Tontelange (Attert) une ancienne ferme de caractère sur un terrain de 7 ares 63 centiares.

Située dans une rue calme et recherchée du village, cette propriété authentique séduira les amateurs de charme, d’espace et de projets. Derrière son allure typique se cache un bien aux volumes généreux offrant un potentiel d’aménagement rare dans la région.

La maison se compose comme suit :

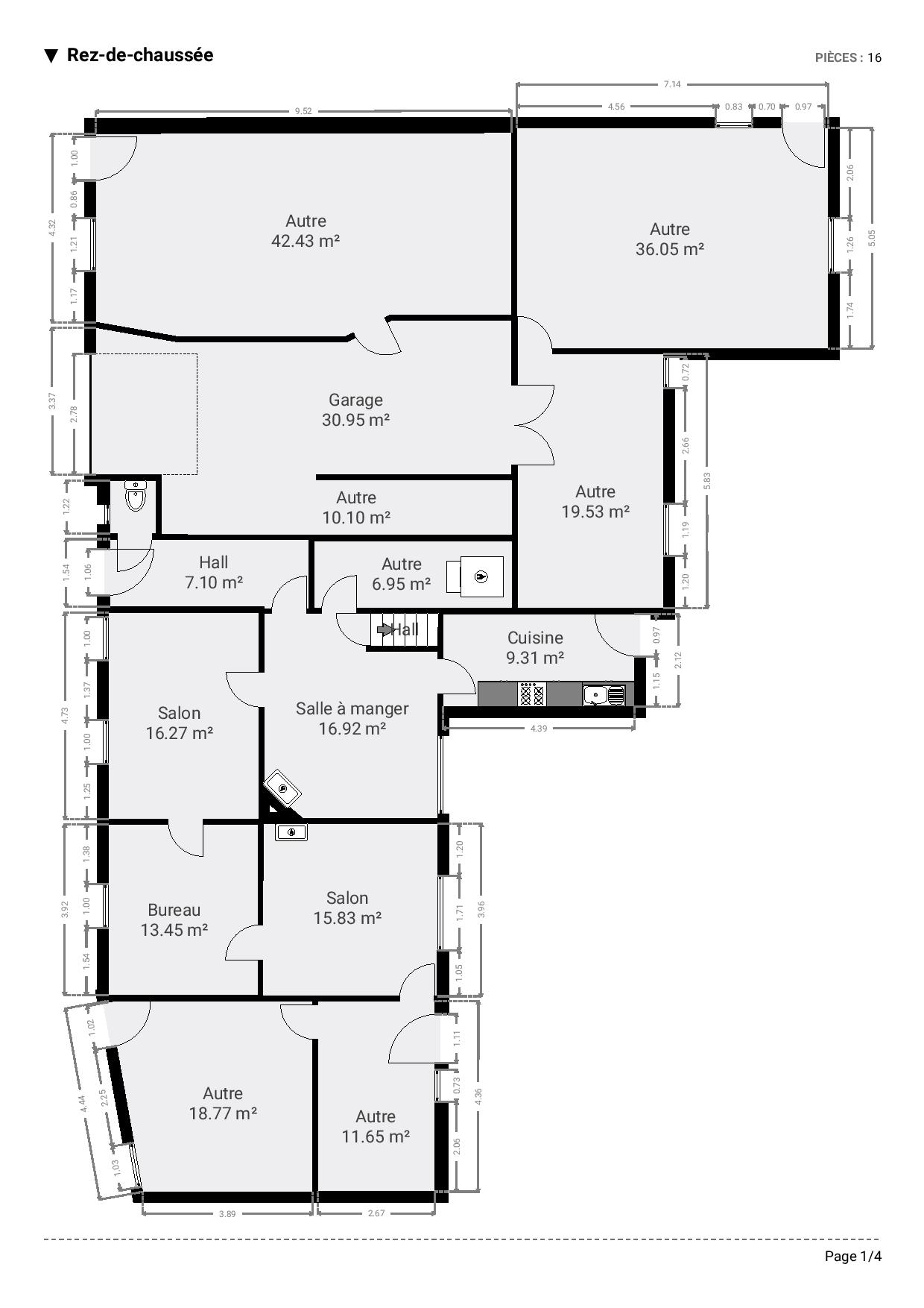
Rez-de-chaussée

  • Hall d’entrée
  • Séjour et salle à manger
  • Bureau
  • Cuisine
  • Plusieurs ateliers et espaces de rangement
  • Chaufferie
  • Grande grange avec porte d’accès type garage et volumes impressionnants à exploiter

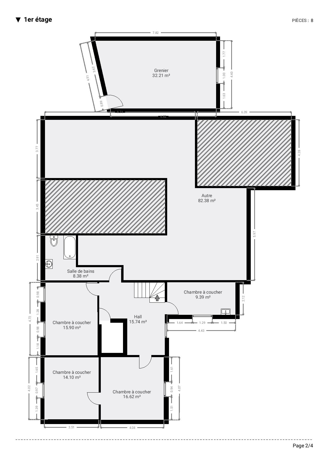
1er étage

  • Hall de nuit
  • 4 chambres
  • Salle de bains
  • Espace supplémentaire à aménager dans le volume de la grange

2e étage

  • Grenier offrant un beau potentiel d’aménagement

Sous-sol

  • Caves

Implantée sur un terrain de 7a63, la propriété bénéficie d’un agréable jardin orienté plein sud, à l’abri des regards, idéal pour profiter d’un ensoleillement optimal tout au long de la journée.

Ce que nous aimons particulièrement ❤️

  • Le cachet authentique d’une véritable ferme de village
  • Les volumes exceptionnels et les nombreuses possibilités d’aménagement
  • La grange idéale pour une extension, un atelier, un garage ou un espace polyvalent
  • L’orientation plein sud du jardin
  • La situation calme, à proximité d’Arlon, du Luxembourg et de Martelange

Un bien rare pour les amoureux de caractère et de projets à forte valeur.

Les informations fournies par l'agence ont un caractère indicatif et non contractuel. En conséquence, elles ne peuvent engager la responsabilité de l'agence et ne dispensent pas la personne intéressée de réaliser les vérifications.

 

Informations générales

  • Surface habitable 243 m2
  • Surface du terrain 763 m2
  • Nombre de chambres 4
  • Nombre de salle de bains 1
  • Cave Oui
  • Grenier Oui
  • Chauffage C.C. au mazout
  • Châssis bois
  • Date de disponibilité A l'acte
  • Revenu cadastral net 354
  • Rapport de l'installation électrique Non-conforme RGIE

Performances énergétiques

  • Numéro de certificat PEB 20251212002044
  • Émissions de CO2 spécifiques 117 kg/m2.an
  • consommation totale d’énergie primaire Etotale = 115021 kWh/an
  • Consommation spécifique d'énergie primaire Espec = 473 kWh/m2.an
EPC level

Simulez votre crédit

Taux
%
Budget
Durée (ans)
Votre mensualité
Être informé des nouveaux biens

Demande de contact à propos de ce bien

Être informé des nouveaux biens

Vous avez des critères spécifiques et vous ne trouvez pas ce qui vous correspond ? Inscrivez-vous à notre recherche active.

Critères de recherche

Vos coordonnées

Demande de contact à propos de ce bien

Demande de contact à propos de ce bien