Maison

REF: 9539

Maison à vendre à Arlon

295.000 €

Rue des Glycines, 10
6700 ARLON

Description

W Immobilière vous présente à Arlon cette charmante maison, idéalement située dans un quartier calme, à proximité immédiate du centre-ville, des écoles et de toutes les commodités. Un cadre de vie agréable, parfait pour une famille ou un premier achat.

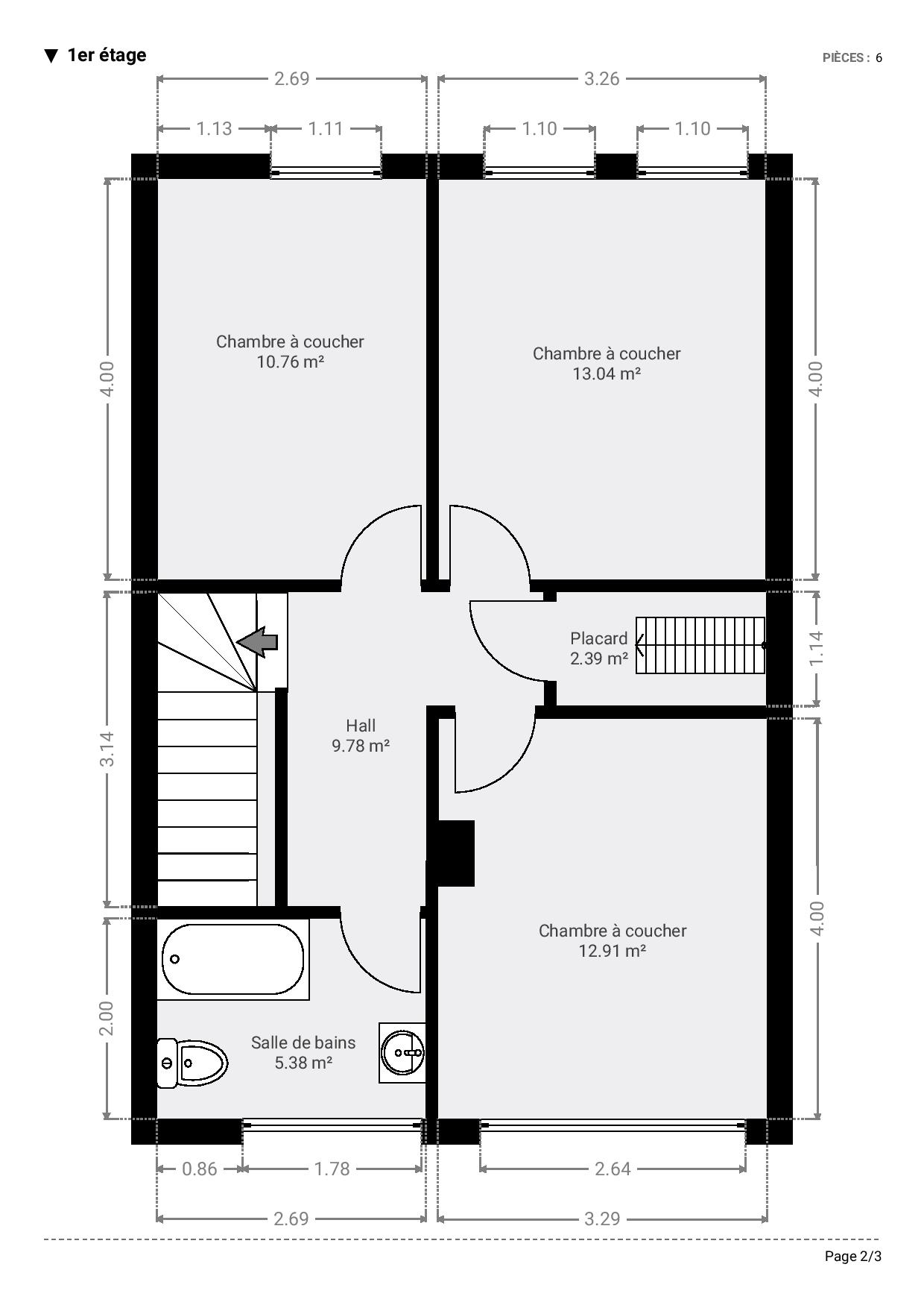
🏡 Composition

  • Rez-de-chaussée : hall d’entrée, WC séparé, séjour lumineux, cuisine
  • 1er étage : hall de nuit, salle de bains, trois chambres, débarras
  • 2e étage : grenier accessible par trappe, offrant un espace de rangement supplémentaire

À l’extérieur, vous profiterez d’un agréable jardin, d’une terrasse idéale pour les beaux jours ainsi que d’un box de garage inclus dans la vente.

💚 Ce que nous aimons

  • ✔️ Quartier calme tout en étant proche du centre-ville
  • ✔️ Maison fonctionnelle et bien agencée
  • ✔️ Trois vraies chambres
  • ✔️ Jardin et terrasse pour profiter de l’extérieur
  • ✔️ Garage
  • ✔️ Idéal pour une famille ou un premier achat serein

Pour tous renseignements :
W Immobilière – 063 227 277

Les informations fournies par l’agence ont un caractère indicatif et non contractuel. En conséquence, elles ne peuvent engager la responsabilité de l’agence et ne dispensent pas la personne intéressée de réaliser les vérifications.

 

Informations générales

  • Surface habitable 125 m2
  • Surface du terrain 173 m2
  • Nombre de chambres 3
  • Nombre de salle de bains 1
  • Cave Non
  • Grenier Oui
  • Chauffage Accumulateurs électriques
  • Châssis
  • Date de disponibilité A l'acte
  • Revenu cadastral net 924

Performances énergétiques

  • Numéro de certificat PEB 20251217020926
  • Émissions de CO2 spécifiques 80 kg/m2.an
  • consommation totale d’énergie primaire Etotale = 38613 kWh/an
  • Consommation spécifique d'énergie primaire Espec = 310 kWh/m2.an
EPC level

Simulez votre crédit

Taux
%
Budget
Durée (ans)
Votre mensualité
Être informé des nouveaux biens

Demande de contact à propos de ce bien

Être informé des nouveaux biens

Vous avez des critères spécifiques et vous ne trouvez pas ce qui vous correspond ? Inscrivez-vous à notre recherche active.

Critères de recherche

Vos coordonnées

Demande de contact à propos de ce bien

Demande de contact à propos de ce bien