Maison

REF: 9301

Maison à vendre à Arlon

380.000 €

Rue Godefroid Kurth, 26
6700 ARLON

Description

W Immobilière vous présente à Arlon une charmante maison familiale, spacieuse et baignée de lumière, agencée avec soin sur plusieurs niveaux.

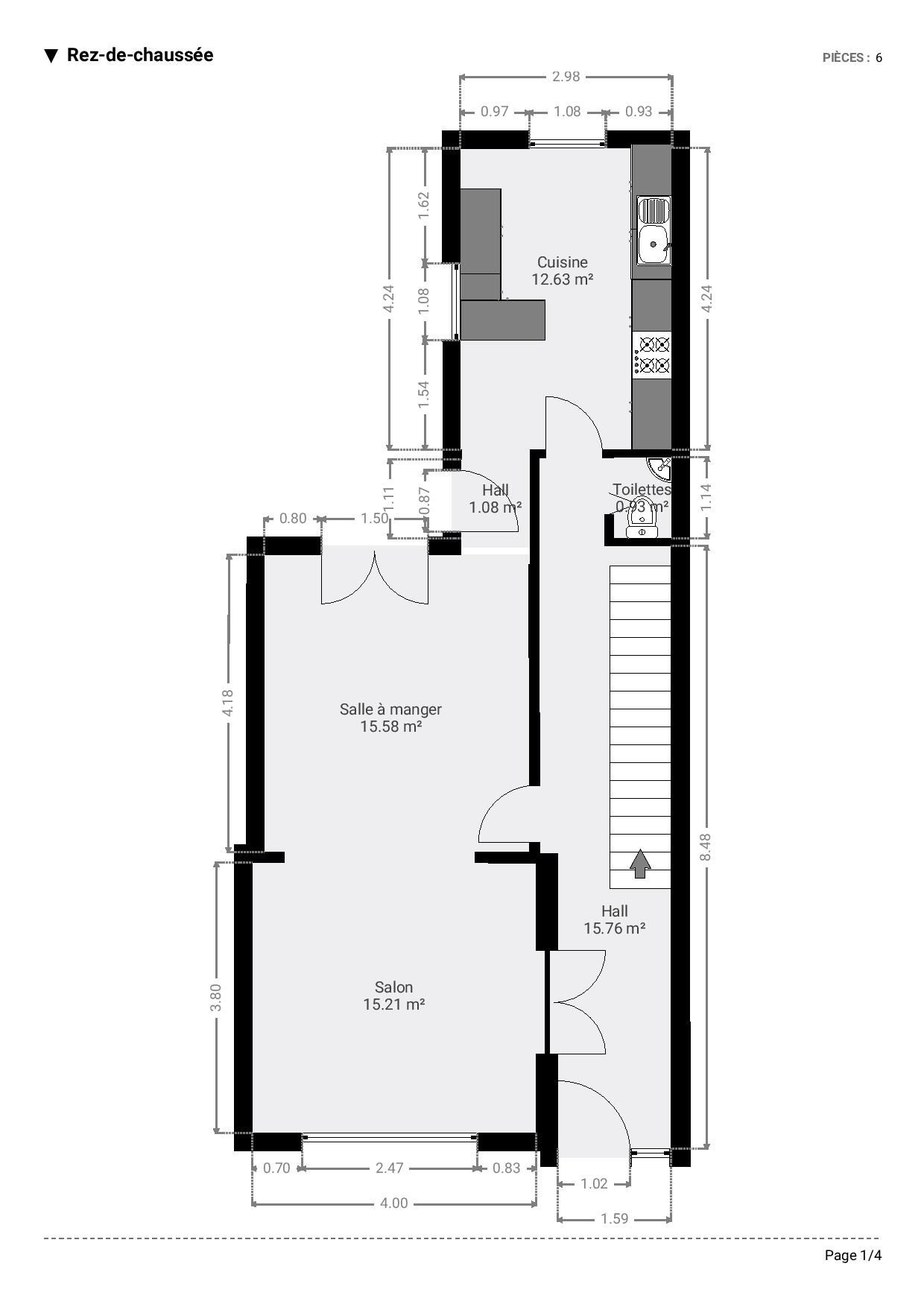
Le rez-de-chaussée se compose d’un accueillant hall d’entrée, d’un séjour salon/salle à manger convivial, d’une cuisine équipée et d’un WC séparé.
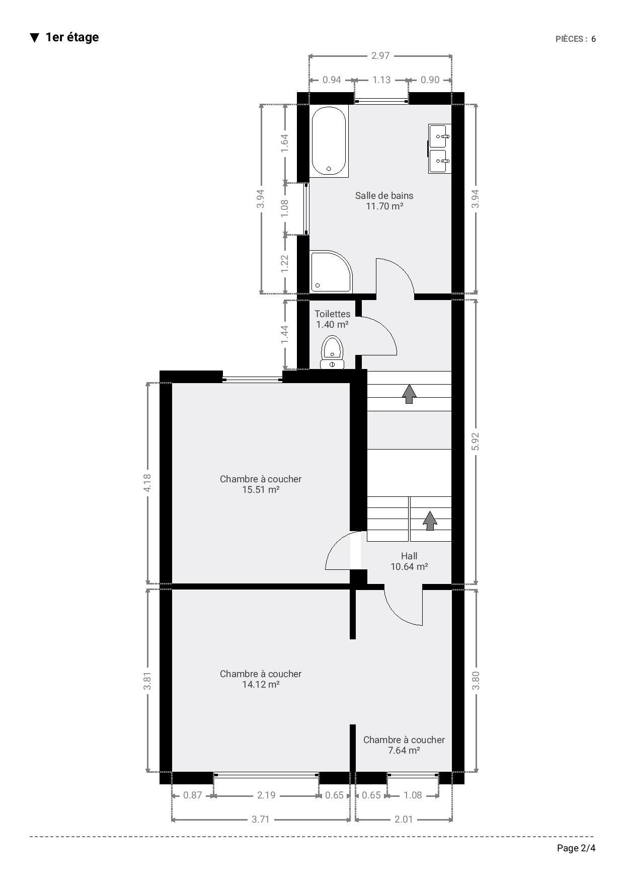
À l’
étage, un hall de nuit dessert deux belles chambres, dont une avec espace dressing, ainsi qu’une salle de bains et un second WC indépendant.
Le
dernier niveau offre un hall de nuit, deux chambres supplémentaires et un grenier pratique.
Le
niveau inférieur comprend des caves et une chaufferie.

Vous profiterez également d’un agréable jardin, parfait pour les beaux jours ☀️, de châssis PVC double vitrage et d’une chaudière au gaz récente (2019).
La
performance énergétique en classe C garantit un excellent confort thermique et une consommation maîtrisée.

Une opportunité à ne pas manquer dans un secteur recherché d’Arlon !

📞 Pour tous renseignements : 063 227 277

 

Les informations fournies par l’agence ont un caractère indicatif et non contractuel.
En conséquence, elles ne peuvent engager la responsabilité de l’agence et ne dispensent pas la personne intéressée de réaliser les vérifications

 

Informations générales

  • Surface habitable 220 m2
  • Surface du terrain 230 m2
  • Nombre de chambres 4
  • Nombre de salle de bains 1
  • Cave Oui
  • Grenier Oui
  • Chauffage C.C. au gaz
  • Châssis pvc
  • Date de disponibilité A l'acte
  • Revenu cadastral net 969
  • Rapport de l'installation électrique Non-conforme RGIE

Performances énergétiques

  • Numéro de certificat PEB 20251017010142
  • Émissions de CO2 spécifiques 44 kg/m2.an
  • consommation totale d’énergie primaire Etotale = 52232 kWh/an
  • Consommation spécifique d'énergie primaire Espec = 237 kWh/m2.an
EPC level

Simulez votre crédit

Taux
%
Budget
Durée (ans)
Votre mensualité
Être informé des nouveaux biens

Demande de contact à propos de ce bien

Être informé des nouveaux biens

Vous avez des critères spécifiques et vous ne trouvez pas ce qui vous correspond ? Inscrivez-vous à notre recherche active.

Critères de recherche

Vos coordonnées

Demande de contact à propos de ce bien

Demande de contact à propos de ce bien